top of page
Social housing facility, Skopje
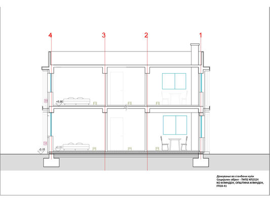
Facility: Facility for social housing
Location: Settlement Ilinden, Skopje
Investor: Joint stock company for construction and management of residential and business premises of importance for the Republic
Net area: 129 m²
Year: 2015
bottom of page




